Spectacular Four Bedroom Villa in Monagroulli , Limassol

TPH Exclusive
For Sale
Under Construction
Ref no.2023-5069
Contact
€850,000+VAT
  • Bedrooms: 4
  • Bathrooms: 3
  • Toilets: 3
  • Living Rooms: 1
  • Kitchens: 1
  • Parking Spaces: 2
  • Floors: 2
  • Status: Under construction
  • Year of Construction: 2024
  • Energy Efficiency Rating: A
  • Covered: 210 m²
  • Plot: 962 m²
  • Covered parking: 18 m²

The Property House presents this Spectacular Four Bedroom Villa For Sale in Monagroulli, Limassol.

This Spectacular Villa with 210 sqm living area, 962sqm plot, two master double suites with private walk-in bathroom, rain shower and walk-in wardrobe, two additional bedrooms , one guest bathroom, infinity swimming pool and stunning mountain views.

The security of the facility is additionally ensured by an electric video-monitored gate.

The high quality contemporary design, build quality and location makes this residence one of the most attractive opportunities to acquire an absolutely impeccable villa.

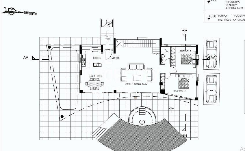
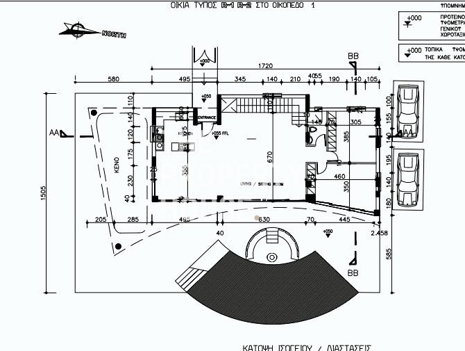
The Ground floor consists of a spacious living room, a fully equipped kitchen with high quality appliances, a central island open to the dining room, two double bedrooms, a bathroom and a guest toilet .

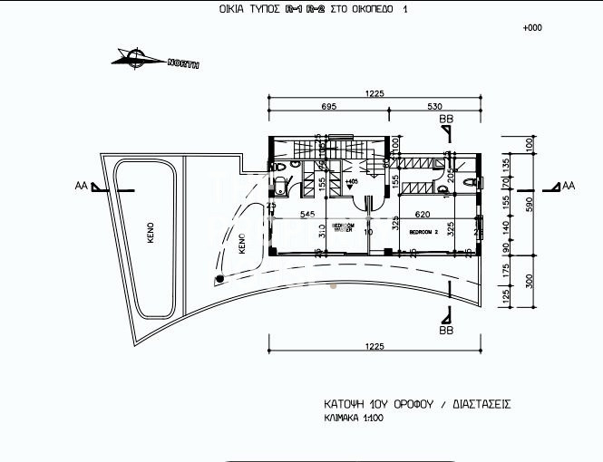
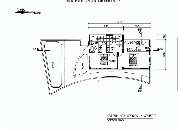
On the first floor there are two double bedrooms, each with its own bathroom, designer bath, with fantastic views of the mountains , ideal for reading a book, with access to the terrace and a dressing room.

From the second floor you can access a huge roof garden that crowns the building and offers an incredible view of the sea and the mountains.

The villa is off plan and delivery is 16 months after signing the sales contract.

For Further information please contact us !

Facilities

  • Aircondition, Central system
  • Gated complex
  • Heating, Underfloor
  • Indoor pool, Private, Overflow
  • Landscaped garden
  • Parking, Covered
  • Pool, Private, Overflow
  • Solar photovoltaic panels
  • Storage

Features

  • 24-hour security
  • Barbeque
  • Bathroom underfloor heating
  • Bright
  • Country view
  • Double glazing
  • Easy access to highway
  • Easy access to main roads
  • Elevated
  • En suite bathroom
  • En suite shower
  • Entrance gate, automated
  • Ground floor bedroom
  • Guest WC
  • Internet
  • Kitchen appliances
  • Luxury specifications
  • Marble flooring
  • Modern design
  • Mountain view
  • Near amenities
  • Near bus route
  • Next to green area
  • Pressurized water system
  • Quiet area
  • Shutters, electric
  • Smart home automation
  • Sound insulation
  • Spacious rooms
  • Thermal insulation
  • Veranda, large
  • Village view
  • Walk-in closet

Floor Plans

Distances

300 m
Amenities
58 km
Airport
4 km
Sea
100 m
Public transport
3 km
Schools
3 km
Resort

Managing agent

Get in touch with us

Thank you for your message!

Similar properties

View all photos & details

Learn more
For Sale
€680,000€830,000

Four Bedroom Villa in Parekklisia, Limassol

View all photos & details

Learn more
Under offer
TPH Exclusive
For Sale
€705,000+VAT

Spectacular Three Bedroom Villa in Monagroulli , Limassol

View all photos & details

Learn more
For Sale
€895,000

Three Bedroom Villa in Pyrgos Tourist Area

View all photos & details

Learn more
For Sale
€960,000

Four Bedroom Villa in Pyrgos Tourist Area