Two Bedroom Apartment in Germasogeia

For Sale
New Build
Ref no.2024-5560
Contact
€405,000+VAT
  • Bedrooms: 2
  • Bathrooms: 1
  • Toilets: 2
  • Living Rooms: 1
  • Kitchens: 1
  • Parking Spaces: 1
  • Floor: 1
  • Floors: 4
  • Status: Off plan
  • Year of Construction: 2024
  • Energy Efficiency Rating: A
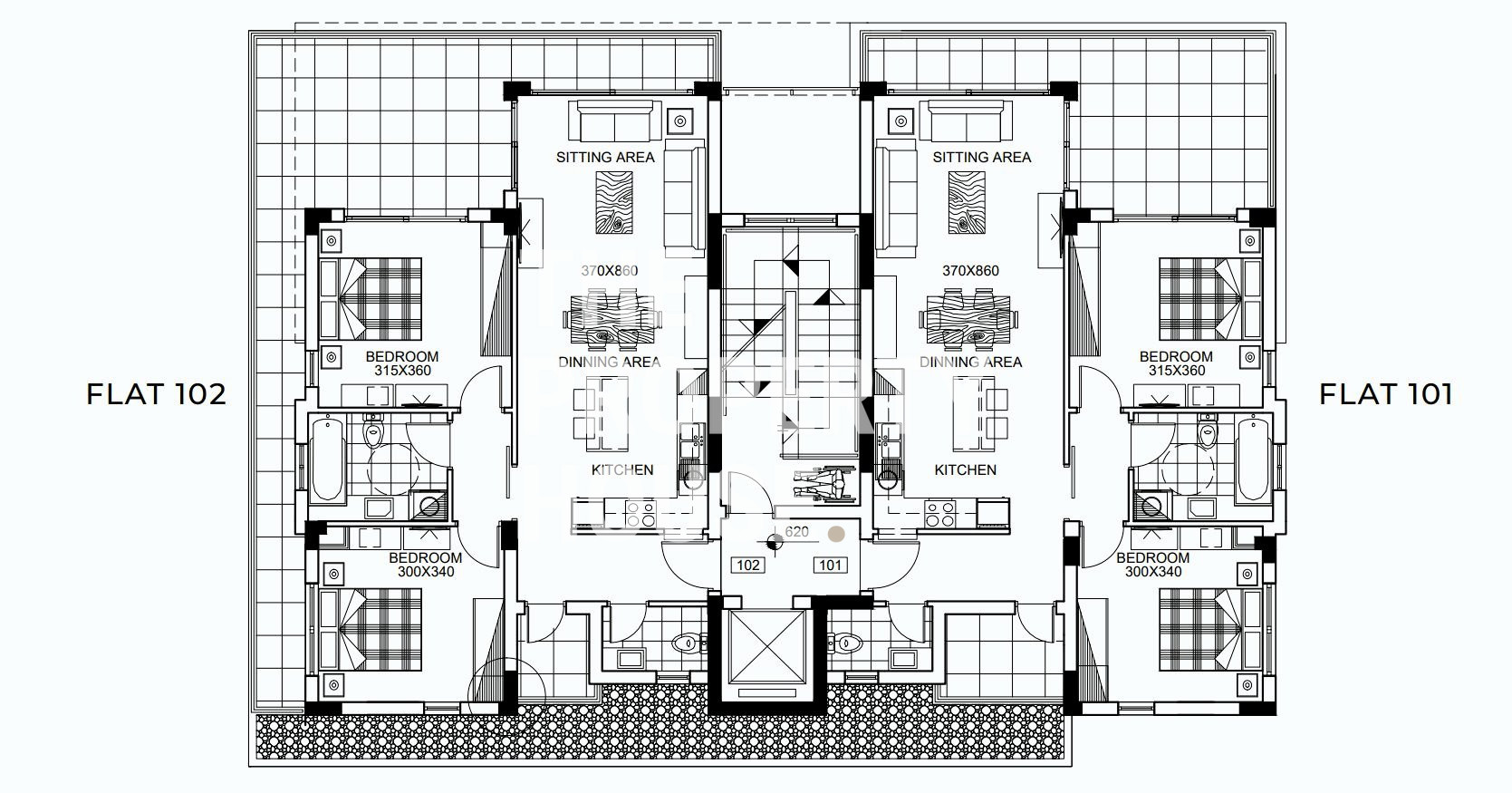
  • Covered: 85.44 m²
  • Covered veranda: 20.72 m²
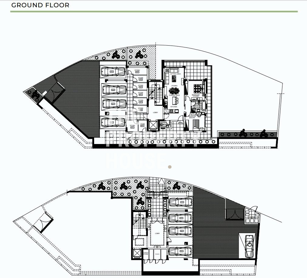
  • Covered parking: 14 m²

The Property House presents this two bedroom apartment for sale in the sought-after Germasogeia area of Limassol.

The apartment features an open-plan living, dining and kitchen area, with a guest toilet, leading onto a spacious veranda. Through a doorway, we find the two bedrooms and a family bathroom.
The ground level hosts a covered parking space and a storage room.

This prime location provides for both tranquillity and accessibility, as the property is located close to schools, to the city centre, all amenities and the beautiful Limassol coastline.

This project is ideal for a family wishing to live in a quite, yet central, location but also as an investment opportunity since the property is located in a prestigious and central area of Limassol.

Delivery date - August 2025

For more information, please contact The Property House.

Facilities

  • Aircondition, Provision
  • Elevator
  • Parking, Covered
  • Storage

Features

  • Balcony
  • Bright
  • Combined kitchen and dining area
  • Double glazing
  • Easy access to highway
  • Easy access to main roads
  • Elevated
  • Fitted wardrobes
  • Guest WC
  • Modern design
  • Near amenities
  • Quiet area
  • Veranda

Floor Plans

Distances

400 m
Amenities
65 km
Airport
2.3 km
Sea
400 m
Public transport
900 m
Schools
2 km
Resort

Managing agent

Get in touch with us

Thank you for your message!

Similar properties

View all photos & details

Learn more
For Sale
€505,000+VAT

Two Bedroom Penthouse in Agios Nikolaos

View all photos & details

Learn more
For Sale
Sea View
€365,000+VAT

Brand New Two Bedroom Apartment with Sea View in Germasogeia

View all photos & details

Learn more
Investment
For Sale
New Build
Off Plan
€473,000+VAT

Brand New One Bedroom Apartment for Sale in Germasogeia Green Area, Limassol

View all photos & details

Learn more
Investment
For Sale
New Build
Off Plan
€305,000+VAT

Brand New One Bedroom Apartment for Sale in Germasogeia Green Area, Limassol