One Bedroom Apartment in Kato Polemidia

For Sale
New Build
Ref no.2024-5607
Contact
€225,000+VAT
  • Bedrooms: 1
  • Bathrooms: 1
  • Toilets: 2
  • Living Rooms: 1
  • Kitchens: 1
  • Parking Spaces: 1
  • Floor: Top floor
  • Floors: 3
  • Status: Off plan
  • Year of Construction: 2024
  • Energy Efficiency Rating: A
  • Furnished: Unfurnished
  • Covered parking: 14 m²
  • Roof garden: 41 m²
  • Covered: 60 m²
  • Covered veranda: 18 m²

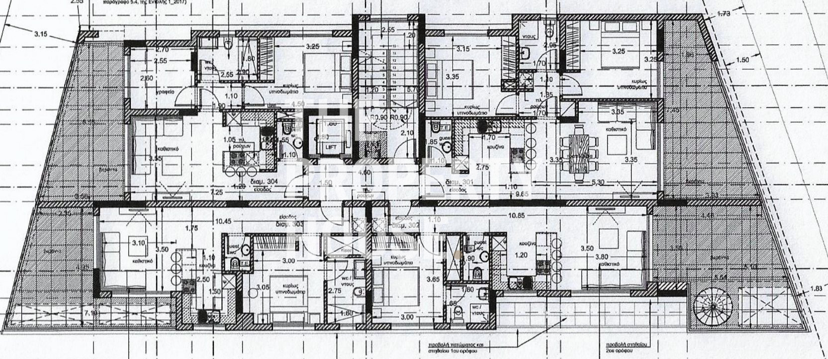
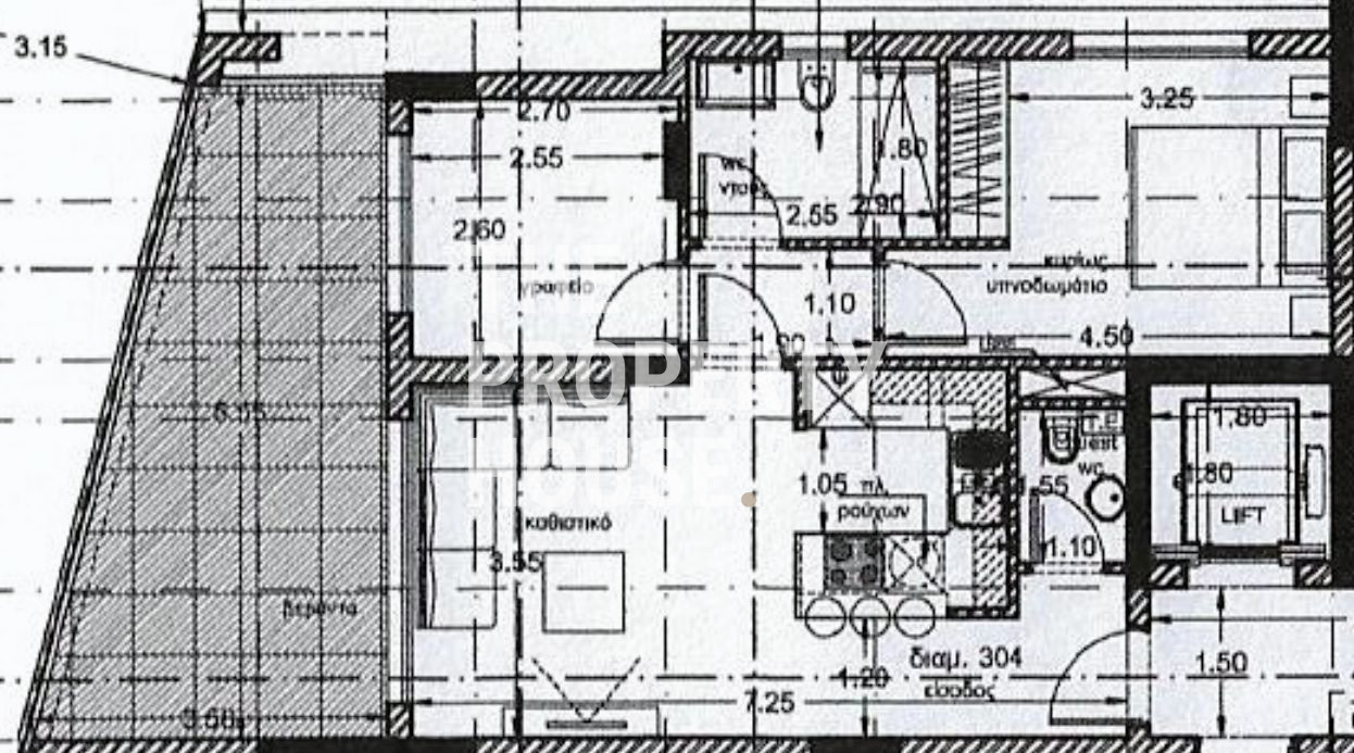
The Property House presents this contemporary one-bedroom + office apartment for sale, located in Limassol's sought-after Kato Polemidia area.

This stylish unit boasts an open-plan living space with a guest toilet, leading to a generous veranda. Transitioning to the sleeping quarters reveals a cozy bedroom, an office or second bedroom and a bathroom.

The modern complex offers gated covered parking and storage facilities for residents, while its prime location ensures convenient access to the highway, schools, and essential amenities.

Delivery Date -- April 2025

For more information, please give us a call.

Facilities

  • Aircondition, Provision
  • Elevator
  • Gated complex
  • Parking, Covered
  • Storage

Features

  • Bright
  • Combined kitchen and dining area
  • Double glazing
  • Easy access to highway
  • Entrance gate, automated
  • Fitted wardrobes
  • Guest WC
  • Modern design
  • Near amenities
  • Office
  • Pressurized water system
  • Quiet area
  • Veranda

Floor Plans

Distances

400 m
Amenities
65 km
Airport
2.5 km
Sea
100 m
Public transport
1 km
Schools

Managing agent

Get in touch with us

Thank you for your message!

Similar properties

View all photos & details

Learn more
Investment
For Sale
New Build
€249,000+VAT

Brand New One Bedroom Apartment in Zakaki

View all photos & details

Learn more
For Sale
€225,000

One Bedroom Apartment in Kato Polemidia, Limassol

View all photos & details

Learn more
Investment
For Sale
Under Construction
€275,000+VAT

Studio Apartment In The City Center

View all photos & details

Learn more
Investment
TPH Exclusive
For Sale
€255,000

Three Bedroom Apartment in Naafi