Brand New Two Bedroom Penthouse with Roof Garden in Ypsonas

For Sale
Under Construction
Ref no.2025-6801
Contact
€320,000+VAT
  • Bedrooms: 2
  • Bathrooms: 2
  • Toilets: 2
  • Living Rooms: 1
  • Kitchens: 1
  • Parking Spaces: 1
  • Floor: Penthouse
  • Floors: 3
  • Status: Under construction
  • Year of Construction: 2025
  • Energy Efficiency Rating: A
  • Furnished: Unfurnished
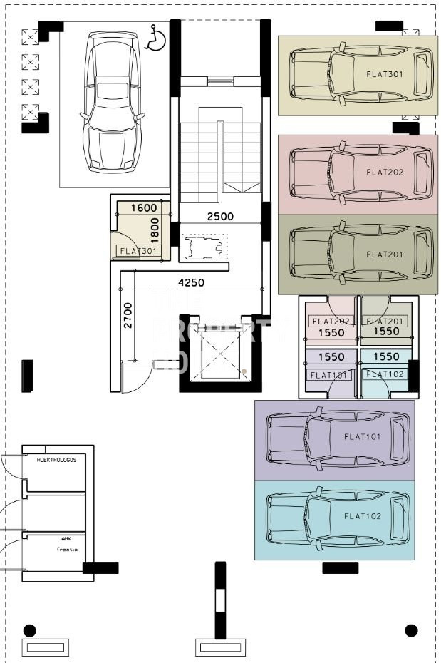
  • Covered parking: 12 m²
  • Covered: 78 m²
  • Roof garden: 38 m²
  • Covered veranda: 19 m²

The Property House presents this brand new two bedroom penthouse with a private roof garden for sale, located in the much loved Ypsonas area of Limassol.

The penthouse features an open plan living, dining and kitchen area surrounded on all sides by a spacious veranda. There are 2 bedrooms and 2 bathrooms, with two of the bedrooms having private ensuite bathrooms. Each bathroom has a window, allowing for natural ventilation. On the ground floor, there is a covered parking space and a storage room.

The private roof garden is accessible from the veranda and offers an outdoor living area with amazing views.

The apartment takes up the whole third floor and the complex has 5 apartments in total, allowing for a great degree of privacy and personal space for its residents, making it the perfect place to call home.

The complex is located on a hill in Agios Sylas, Ypsonas, and has easy access to the highway and a wide array of amenities located just a stone’s throw away, offering an ideal blend of convenience and tranquillity.

Delivery date - June 2025

For more information, please contact The Property House!

Facilities

  • Aircondition, Provision
  • Heating, Provision
  • Parking, Covered
  • Storage
  • Solar water heater

Features

  • Veranda
  • Quiet area
  • En suite bathroom
  • Modern design
  • Near amenities
  • Roof garden
  • Double glazing
  • City view
  • Pressurized water system
  • Bright
  • Fitted wardrobes
  • Easy access to main roads
  • Easy access to highway

Floor Plans

Distances

500 m
Amenities
60 km
Airport
6 km
Sea
500 m
Public transport
1 km
Schools
6 km
Resort

Managing agent

Get in touch with us

Thank you for your message!

Similar properties

View all photos & details

Learn more
Investment
For Sale
€280,000+VAT

Spacious Two Bedroom Apartment - Erimi

View all photos & details

Learn more
Investment
Off Plan
€395,000+VAT

Two Bedroom Penthouse Apartment - Kato Polemidia

View all photos & details

Learn more
Investment
Off Plan
€345,000+VAT

Large Two Bedroom Apartment - Kato Polemidia

View all photos & details

Learn more
Investment
Off Plan
€325,000+VAT

Two Bedroom Apartment - Kato Polemidia