Brand New Three Bedroom House in Souni - Limassol

For Sale
Off Plan
Ref no.2026-7412
Contact
€410,000+VAT
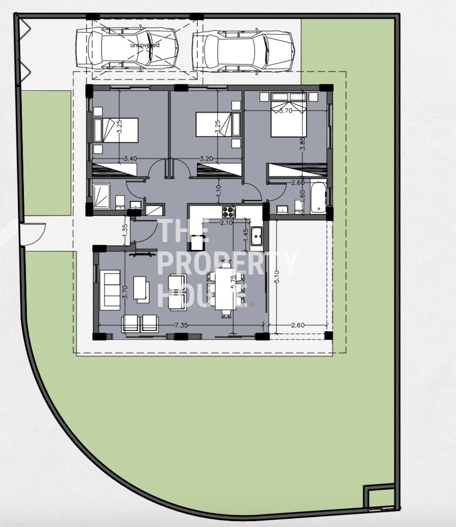
  • Bedrooms: 3
  • Bathrooms: 2
  • Toilets: 3
  • Living Rooms: 1
  • Kitchens: 1
  • Parking Spaces: 2
  • Floors: 2
  • Status: Off plan
  • Year of Construction: 2024
  • Energy Efficiency Rating: A
  • Covered parking: 29 m²
  • Covered: 120 m²
  • Covered veranda: 15 m²
  • Plot: 363 m²

The Property House presents this brand new three bedroom house for sale, located in the mountainous area of Souni in the Limassol District.

The villa features a open plan living, dining and kitchen area with a guest toilet, leading onto a large veranda and landscaped garden and barbeque area. Here we have the option for a swimming pool. Upstairs we find three bedrooms and two bathrooms, the master bedroom having an ensuite bathroom, and a covered veranda with an option to be converted into a fourth bedroom.

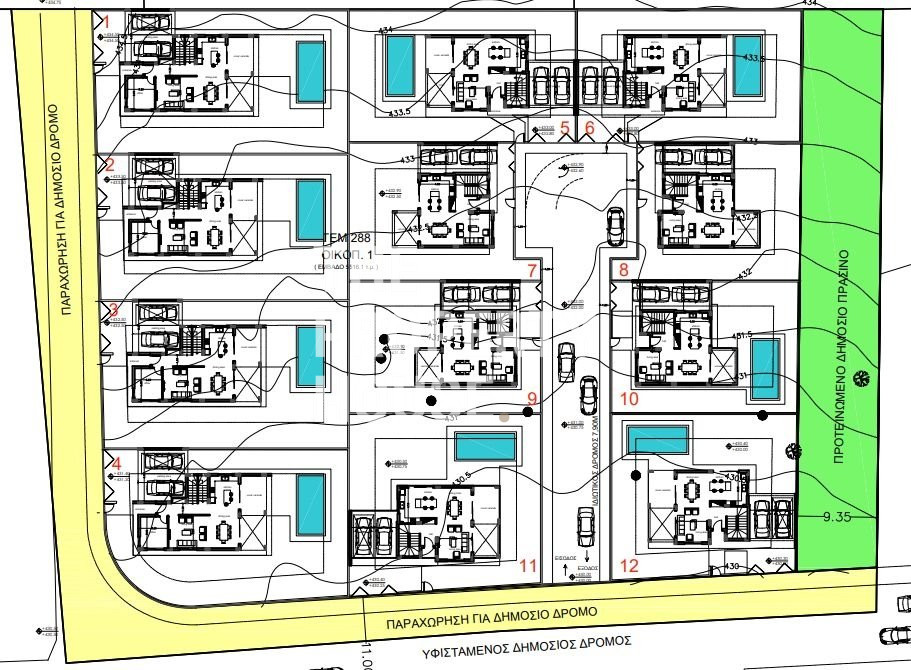
This stunning residential development is nestled amongst pine trees, overlooking the Akrotiri coastline, providing tranquillity and privacy, yet being just a 10-minute drive from Limassol's city centre. Inspired by Mediterranean architecture, the villas feature spacious plots, private swimming pool options, and barbecue areas. With landscaped gardens, wooden finishes, and natural stone touches, these homes create appealing living spaces. Enjoy the enchanting views of the coast and Cypriot countryside in Souni's magical setting, elevated for a refreshing climate.

The Villa is off plan and will be delivered in 15 months

For more information, please give us a call.

Facilities

  • Aircondition, Provision
  • Parking, Covered
  • Pool, Optional
  • Solar water heater

Features

  • Veranda
  • Quiet area
  • Barbeque
  • En suite bathroom
  • Modern design
  • Double glazing
  • Pressurized water system
  • Bright
  • Balcony
  • Fitted wardrobes
  • Elevated
  • Combined kitchen and dining area

Floor Plans

Distances

500 m
Amenities
70 km
Airport
4 km
Schools

Managing agent

Get in touch with us

Thank you for your message!

Similar properties

View all photos & details

Learn more
For Sale
Off Plan
€530,000+VAT

Brand New Three Bedroom House in Souni - Limassol