Business Centre in Limassol Old Town

For Sale
New Build
Ref no.2024-5559
Contact
€4,400,000+VAT
  • Toilets: 10
  • Kitchens: 5
  • Floors: 5
  • Status: Off plan
  • Year of Construction: 2024
  • Energy Efficiency Rating: A
  • Furnished: Unfurnished
  • Covered: 740 m²

The Property House presents this brand new modern Business Centre for sale, located in the heart of the historical centre of Limassol, 90 m from the beach.

The 740 m² Five-Floor Business Centre consists of:

• Ground Floor: 174.28 m2 covered area
• First Floor: 149.87 m2 covered area
• Second Floor 155.58 m2 covered area
• Third Floor 167.94 m2 covered area
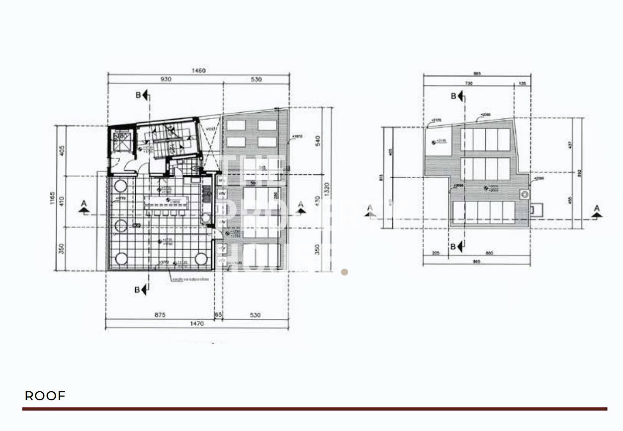
• Fourth Floor + roof garden: 151.89 m2

Spectacular sea and city views can be had from the stunning roof garden, a retreat from the hustle and bustle of the rat race.

Ideally located in the vibrant old town of Limassol, the property is a stone's throw away from the Molos Promenade and within walking distance from the Marina and Anexartisias Street, with all their colourful restaurants and bohemian bars. Gladstonos Street, a main business hub, is around the corner.

• The property is next to an building which is being converted into a boutique hotel, with the
option to be converted into office space or employee accommodation. Joint investment
projects can be explored.

Delivery Date - Septembe 2025

For more information, please contact The Property House.

Facilities

  • Aircondition, Central system
  • Elevator
  • Parking, Underground

Features

  • City view
  • Closed offices
  • Double glazing
  • Earthquake-resistant structure
  • Easy access to main roads
  • Heart of city center
  • Near amenities
  • Near public transport
  • Roof garden
  • Sea view
  • Veranda

Floor Plans

Distances

400 m
Amenities
65 km
Airport
100 m
Sea
150 m
Public transport
600 m
Schools
2.5 km
Resort

Managing agent

Get in touch with us

Thank you for your message!

Similar properties

View all photos & details

Learn more
For Sale
€3,600,000

Commercial Building in Neapolis

View all photos & details

Learn more
For Sale
Under Construction
New Build
€4,200,000+VAT

Commercial Building in Kato Polemidia