Two Bedroom Penthouse in Agios Athanasios

For Sale
Off Plan
Ref no.2024-6440
Contact
€423,000+VAT
  • Bedrooms: 2
  • Bathrooms: 2
  • Toilets: 1
  • Showers: 1
  • Living Rooms: 1
  • Kitchens: 1
  • Parking Spaces: 1
  • Floor: Penthouse
  • Floors: 3
  • Status: Off plan
  • Year of Construction: 2026
  • Energy Efficiency Rating: A
  • Furnished: Unfurnished
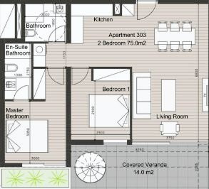
  • Covered: 75 m²
  • Roof garden: 45 m²
  • Covered veranda: 20 m²

The Property House is thrilled to present this exceptional 2-bedroom penthouse, located in the tranquil and highly sought-after neighborhood of Agios Athanasios, Limassol. This stunning penthouse boasts a private roof garden, providing an exclusive outdoor oasis with breathtaking panoramic views of the city, mountains, and sea.

Key Features:
-Private roof garden, perfect for relaxation and outdoor entertaining
-Spacious covered veranda, ideal for enjoying the picturesque surroundings
-Master bedroom with en suite bathroom, offering privacy and luxury
-Prime location with convenient access to essential amenities, major roads, and Limassol’s vibrant city center
-Private covered parking space for enhanced security and convenience
-Modern two-bedroom layout, designed to provide comfort and elegance

Internal area: 75m2
Covered veranda: 20m2
Roof Garden: 45m2

This contemporary penthouse not only elevates daily living but also presents a prime investment opportunity, with excellent potential for capital appreciation and rental yields in this high-demand area.

For more information or to arrange a viewing, please contact The Property House today!

Facilities

  • Elevator
  • Gated complex
  • Parking, Covered
  • Storage

Features

  • Barbeque
  • Combined kitchen and dining area
  • Easy access to main roads
  • Entrance gate
  • Modern design
  • Near amenities
  • Near bus route
  • Roof garden
  • Shower
  • Veranda

Floor Plans

Distances

500 m
Amenities
50 km
Airport
3 km
Sea
100 m
Public transport
1 km
Schools
2.8 km
Resort

Managing agent

Get in touch with us

Thank you for your message!

Similar properties

View all photos & details

Learn more
For Sale
€330,000+VAT

Brand New One Bedroom Apartment in Germasogeia, Limassol

View all photos & details

Learn more
For Sale
€500,000+VAT

Brand New Three Bedroom Penthouse in Germasogeia Village

View all photos & details

Learn more
For Sale
Under Construction
€525,000+VAT

Two Bedroom Apartment in Columbia Area

View all photos & details

Learn more
For Sale
Sea View
€365,000+VAT

Brand New Two Bedroom Apartment with Sea View in Germasogeia