Premium Seafront Office Space – Molos, Limassol

For Rent
Ref no.2025-7220
Contact
€32,000+VAT/month
  • Toilets: 4
  • Kitchens: 1
  • Parking Spaces: 11
  • Floor: Ground floor
  • Floors: 7
  • Status: Key ready
  • Year of Construction: 2024
  • Energy Efficiency Rating: B+
  • Covered: 681 m²

The Property House proudly presents this exceptional office and retail space for rent located directly on Limassol’s iconic Molos promenade — one of the most prestigious and dynamic business addresses in Cyprus.

This brand-new business tower is an architectural landmark, rising seven floors above the seafront with a wave-inspired façade that perfectly captures the essence of Limassol’s coastal vibrancy. The development blends modern commercial design with a lifestyle-oriented environment surrounded by cafés, fine dining restaurants, luxury boutiques, and major business centres.

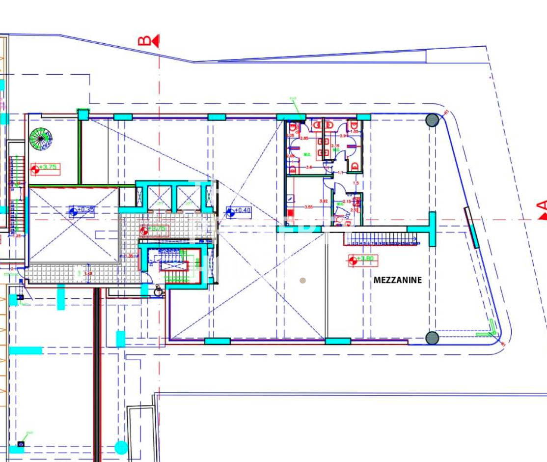
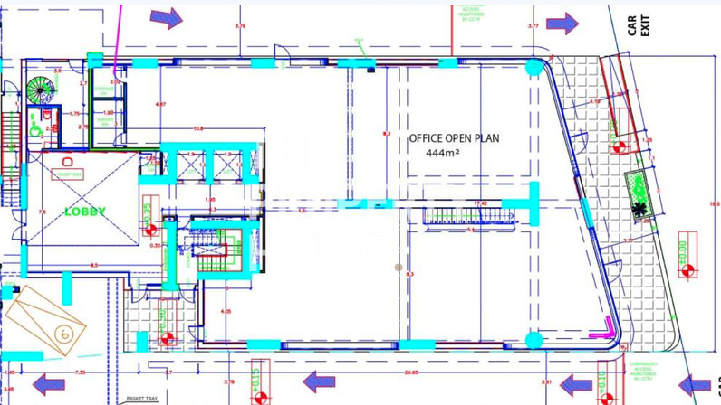
The ground floor retail/office unit and mezzanine level offer an ideal setting for expanding companies, corporate headquarters, or high-end retail concepts seeking maximum exposure and prestige. With panoramic sea views and a prime location on the promenade, this property ensures unparalleled visibility and convenience.

Key Features:

• Ground Floor: 444 m² (Available from January 2026)
• Mezzanine: 237 m² (Available from January 2026)
• Raised flooring for flexible cabling and IT infrastructure
• VRV air-conditioning system for energy-efficient climate control
• 11 dedicated parking spaces
• High-end finishes and modern architectural design
• Prime seafront location surrounded by top-tier amenities

This landmark tower redefines Limassol’s business landscape — offering a workspace that inspires productivity, professionalism, and prestige.

Contact The Property House today for more information or to reserve your space in Limassol’s newest seafront business address.

Facilities

  • Aircondition, Central system
  • Elevator
  • Parking, Covered
  • Solar water heater

Features

  • Alarm system
  • CCTV
  • Double glazing
  • Easy access to highway
  • Easy access to main roads
  • Entrance gate, automated
  • Entrance hall
  • Heart of city center
  • Kitchenette
  • Near amenities
  • Near bus route
  • Near public transport
  • Painted
  • Server room
  • Wireless internet

Floor Plans

Distances

0 m
Amenities
65 km
Airport
100 m
Sea
0 m
Public transport
100 m
Resort

Managing agent

Get in touch with us

Thank you for your message!